Gate Estate

Prodej novostavby bytů Všechovice – Juhyňské zahrádky

Všechovice, okres Přerov
4 011 875 Kč
1

Popis nemovitosti

Představujeme Vám Juhyňské zahrádky ve Všechovicích – nový developerský projekt, který přináší moderní a komfortní bydlení v klidné lokalitě s dobrou dostupností do města. Projekt zahrnuje k prodeji 23 BJ a k pronájmu 12 BJ různých dispozic od 1+kk až po prostorné 4+kk, takže si zde své vysněné bydlení najde jak jednotlivec, pár nebo rodina s dětmi.

Základní informace o projektu:
Lokalita: Všechovice, klidná část obklopená zelení, dostupnost do měst – Hranice (15min), Valašské Meziříčí (20min), Přerov (25min) a Bystřice pod Hostýnem (13min).
Zahájení výstavby: podzim 2025
Plánované dokončení: polovina roku 2027
Dispozice bytů: 1+kk, 2+kk, 3+kk, 4+kk, ve většině případů se zahrádkou či terasou
Sklepy: ke každému bytu je v ceně sklep
Parkování: Ke každému bytu náleží parkování v ceně
Okolí: Blízkost přírody, cyklostezky, dětská hřiště
Občanská vybavenost Všechovic: Školka, škola, 2 obchody, hospůdka Pastevník, tenisové kurty, fotbalové i víceúčelové hřiště a další.

Proč zvolit bydlení v Juhyňských zahrádkách?
✅ Moderní architektura – nadčasový design a kvalitní materiály
✅ Možnost klientských změn – přizpůsobte si byt podle svých představ
✅ Skvělá investice – ideální jak pro vlastní bydlení, tak pro pronájem

Vysoký standard provedení – energetická náročnost A, tedy opravdu nízké náklady na bydlení.
Technologie: tepelné čerpadlo, podlahové teplovodní vytápění, rekuperace, předokenní žaluzie, plastová izolační okna s trojskly a další.

Způsob prodeje: Při projevení zájmu o koupi bytu se podepisuje Smlouva o smlouvě budoucí kupní, na základě které se skládá 20% z kupní ceny bytu. Následně se dle prostavěnosti platí následující platby:
30% po dokončení hrubé stavby,
40% po dokončení omítek, obkladů a dlažeb,
10% po kolaudaci na základě podpisu Kupní smlouvy.

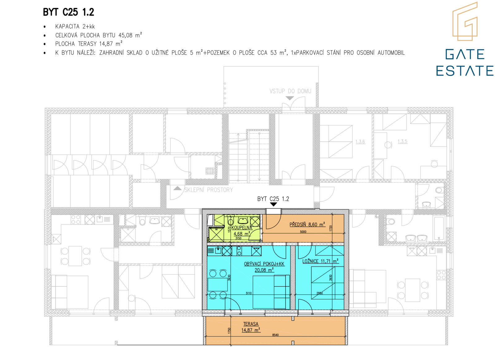
Zde inzerovaný byt 2kk má velikost 45m2, 53m2 zahrada, 15m2 terasa, 5m2 sklad + 1x parkovací stání.
Prodejná cena činí 4.011.875,-Kč vč. DPH. Tento byt je ideální pro jednotlivce, páry či rodiny jak bydlení tak k investici.

Pro zobrazení webu si prosím zadejte do googlu "Byty Juhyňské zahrádky" – sreality neumožňují vkládat web do textu.

Byty se předávají kompletně dokončené vč. obkladů, dlažeb, finálních povrchů podlah, sanity, výmalby. Kuchyňskou linku si každý zařizuje sám.

V případě jakýchkoliv dotazů jsem k dispozici.

Adresa

Všechovice
Česká republika

Máte zájem o tuto nemovitost? Ozvěte se nám.