Gate Estate

Prodej novostavby RD v Bystřici pod Hostýnem – A.Horáka

Bystřice pod Hostýnem, okres Kroměříž
11 350 000 Kč
1

Popis nemovitosti

Ve výhradním zastoupení prodávajícího vám představuji výstavbu novostaveb rodinných domů na ulici A. Horáka v Bystřici pod Hostýnem.

domypodhostynem.cz

Po úspěšném dokončení 17 rodinných domů se místní developer Stanion s.r.o. právě chystá tuto ulici dokončit. Druhá etapa zahrnuje výstavbu čtyř rodinných domů, jejichž dispozice a standardy neznají kompromisy.
Jedná se o největší domy v tomto projektu. Domy jsou určené primárně pro čtyřčlennou rodinu s možností přizpůsobení pro potřeby větší domácnosti. Domy jsou v energetické náročnosti A = velmi nízké náklady na bydlení.

Pozemky jsou v rozmezí 371 – 568m2. Podlahová plocha domů 161-170m2.

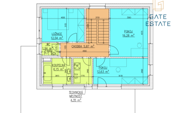
Dispozice domu s 5kk:

1NP:
– Prostorný obývací pokoj propojený s jídelnou a kuchyňským koutem.
– Další pokoj, který lze využít jako pracovnu nebo pokoj pro hosty.
– Koupelna s průchodem do garáže, samostatná toaleta a zádveří.

2NP:
– Tři ložnice – hlavní ložnice s dostatkem úložného prostoru a dva dětské pokoje.
– Prostorná koupelna, samostatná toaleta.
– Technická místnost.
– Možnost přístupu na zatravněnou střechu garáže.

Stavební řešení:

– Dům je zděný na betonových základech. Stropní konstrukce jsou betonové.
– Kvalitní tepelné izolace pro maximální úspory energie.
– Moderní stavební materiály zajišťující vysokou odolnost a minimální údržbu.
– Rozměrná hliníková okna s trojskly pro dostatek přirozeného světla.
– Vegetační střechy pro zadržování vody a lepší mikroklima.
– Hliníkové vstupní dveře.
– Sekční garážová vrata s el. motorem.
– Venkovní žaluzie s ovládacím elektro motorem.
– Finální povrchy: keramické obklady, dlažby, podlahy, interiérové dveře.
– Sanita: sprchové kouty/vany, umývadla, baterie, topné žebříky ve vyšším standardu.
– Brána pro pěší v plotu, plot dřevěné laťování ze sibiřského modřínu.

Technické zařízení:
Dům je vybaven moderními technologiemi, které zajišťují maximální komfort. Ve standardu je dálková správa tepelného čerpadla a vzduchotechniky pomocí mobilní aplikace.
Vytápění: Nízkoteplotní podlahové vytápění. Zdrojem je tepelné čerpadlo.
Vzduchotechnika: Rovnotlaké větrání s rekuperační jednotkou pro úsporné větrání a trvalý přísun čerstvého vzduchu.
Připravenost pro inteligentní dům: Dům je připraven na instalaci systémů chytré domácnosti, jako je ovládání světel, topení a bezpečnostních prvků.

Možnost výběru: Místo tepelného čerpadla a podlahového vytápění je možné dodat fotovoltaiku a podlahové vytápění s el. topnými kabely.

Prodejní cena (jedná se o rohový dům s označením A):
Pozemek 1.090.000,- Kč (436m2)
Rodinný dům 8.500.000,- Kč (131m2)
Bioklimatická pergola 320.000,- Kč
Garáž 1.235.000,- Kč (31m2)
Zpevněné plochy 695.000,- Kč
Inženýrská a projekční činnost 150.000,- Kč
Celkem 11.990.000,-Kč

Developer garantuje vyřízení dotace 640.000,- Kč
Finální cena je tedy 11.350.000,- Kč

Domy se mírně dispozičně liší, pro porovnání navštivte stránku domypodhostynem.cz

Dokončení 18 měsíců od podpisu smlouvy.

V případě zájmu o jakékoliv informaci mi prosím zavolejte.

Adresa

Bystřice pod Hostýnem
Česká republika

Máte zájem o tuto nemovitost? Ozvěte se nám.